
안녕하십니까
호치민시 부동산종합컨설팅 Better Homes
대표 오순환 입니다.
작년
호치민 + 빈증 + 붕따우
를 하나의 초대형 메가시티로 통합하는 계획이 추진되면서,
이에 따른 인프라 투자 확대와 부동산 가격 상승 기대감이 높아지고 있고
이러한 흐름 속에서 해당 지역은 최근 전례 없이 국내 투자자들의 관심이 집중되는 곳으로 떠오르고 있습니다.
금일은
"빈증뉴시티"
에 대한 간단한 소개
및
신규분양아파트 프로젝트인
"미도리파크 - 더 네스트"
에 대해 자세히 안내드리는 시간을 가져보도록 하겠습니다.
프로젝트 소개에 앞서
우선
빈증성에 대래 간략하게 알아보도록 하겠습니다.

빈증성은
호치민시 북쪽에 위치

동나이성과 더불어
한국, 싱가폴, 중국계 공단이
가장 많이 밀집된 도시로

외국인 직접 투자 규모는
호치민시에 이어 두번째를 기록

2022년
빈증의 지역내총생산은
베트남 평균 5.92%를 훨씬 웃도는 8.01%를 기록

평균 연령 29.5세를 자랑하는
젊은 도시로
베트남내
가장 높은 성장가능성을 보여주는 도시중 하나로 손꼽을수 있을것 같습니다.

다음으로
빈증뉴시티 프로젝트에 대해 알아보겠습니다.

총 1,000헥타,
9만1천명에 달하는 예상 거주민

지난 2009년 도시개발을 시작으로
아파트, 빌라, 호텔, 관공서, 오피스, 학교, 쇼핑몰 및 공원 등
순차적으로 도시가 정비되고 있습니다.


그중
빈증뉴시티내
위치한
"도큐 가든 시티"
프로젝트는

도큐 그룹과 베카맥스의
합작회사인
"베카맥스 도큐" 개발사에 의해
신도시 공사가 진행중에 있습니다.



도큐 가든 시티
프로젝트는
아래와 같이
크게 3개의 단지로 나뉘어져 조성됩니다.


소라가든 (15.1 헥타)
히카리 (3.3헥타)
미도리파크 (60 헥타)
아파트 프로젝트 - 소라가든 1, 소라가든 2, 미도리파크 더뷰, 더 텐
타운하우스 프로젝트 - 미도리파크 하루카


상업시설 - 히카리, 히카리 익스펜션, 미도리파크 스퀘어


체육시설 - 소라가든 Links


쇼핑몰 - 소라가든 SC


등
여러 프로젝트들을
이미 성공적으로 개발하여 운영중에 있으며

현재
분양중인
신규프로젝트인
미도리파크 - 더 네스트 프로젝트
에 대해 자세히 알아보도록 하겠습니다.

더 네스트
프로젝트 개요는 아래와 같습니다:
- 개발사 : Becamex Tokyu
- 대지면적 : 19,196m2
- 총세대수 : 972세대 (2개동 )
- 층수 : 25층 (East 타워)
16층 (West 타워)
1, 4층 공용시설 (수영장, 짐, 농구코트, 샵하우스 등)
- 완공일 : 2027년 2분기 (예정)
- 공급면적 :
스튜디오 (34.8m2)
1베드 (47.2 ~ 59m2)
2베드 (63.8 ~ 74m2)
2베드 + 1 (72.2 ~ 101.5m2)
3베드 (75.5m2)
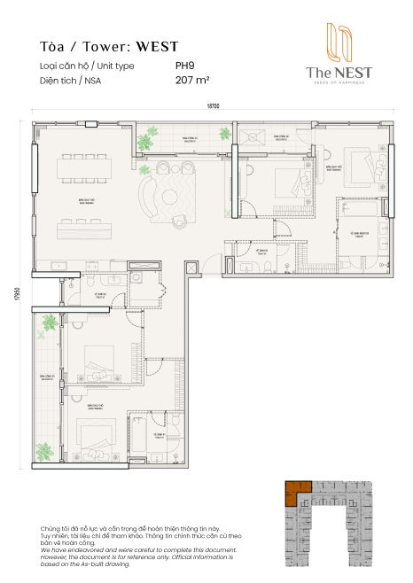
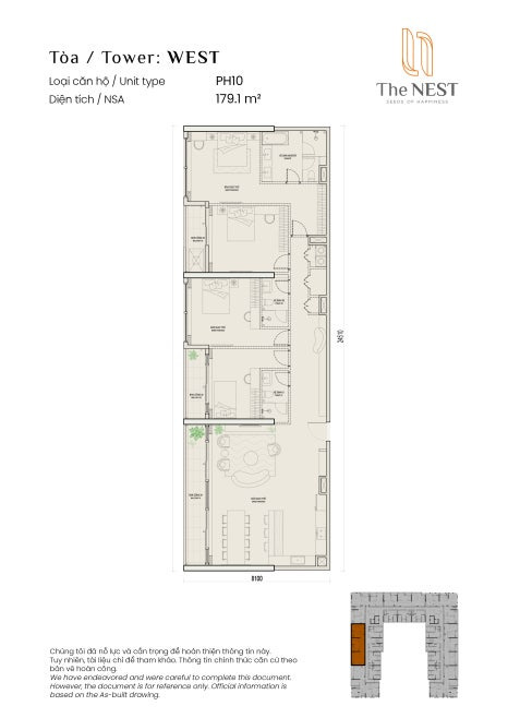
펜트하우스 (177 ~ 207m2)

총 972세대
2개동 (25 & 16층)
및 샵하우스
로 구성된 주상복합아파트 프로젝트로
주변지역 시장상황이 고려되어
상대적으로 작은 평형대로 구성되어 있습니다

아파트 배치도 입니다:

1층은
짐, 요가룸, 농구모트 및 샵하우스

4층의 경우
수영장



4~16층 의 경우 (West 타워)
아파트가 위치합니다.
아래는
각종 공용시설 컨셉사진입니다:












더 네스트 프로젝트
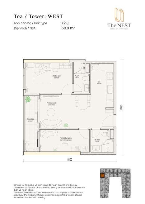
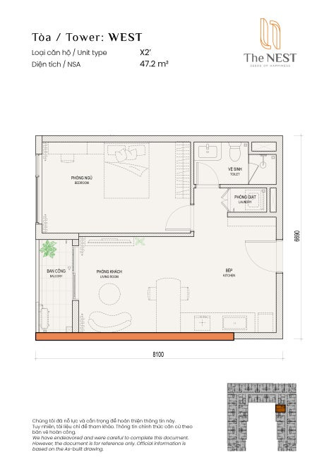
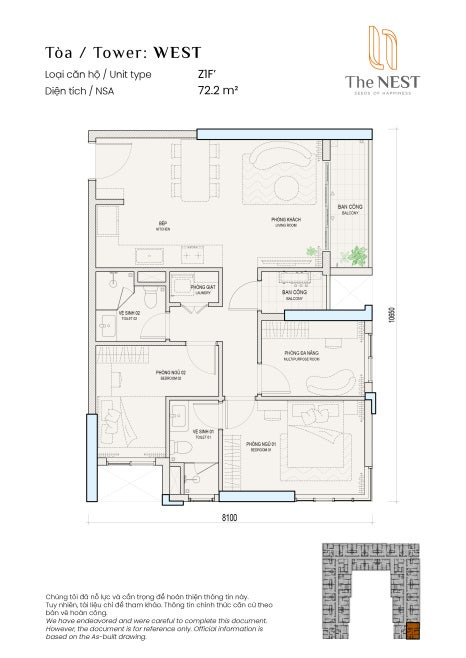
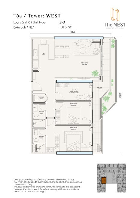
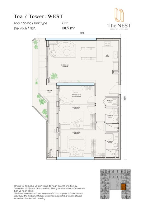
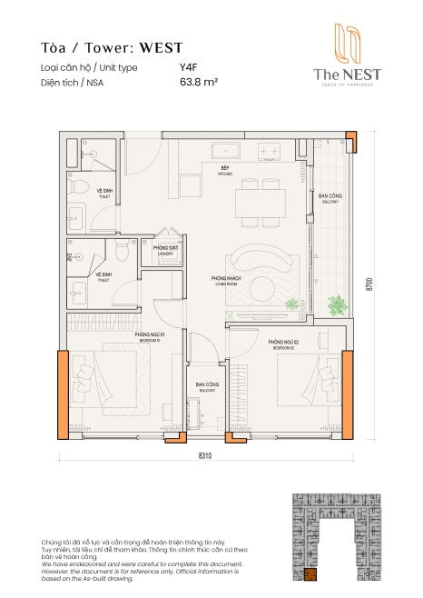
평면계획은 아래와 같습니다
(1) Studio (S)


(2) 1BR + 1WR + 1WC (Y1)




(3) 1BR + 1WR + 2WC (Y2)







(5) 1BR+1WC (X)



(5) 2BR + 1WR + 2WC (Z1)





(6) 2BR + 2WC (Y4)




(7) 3BR + 2WC (Z2)

(8) Penthouse (PH)







평면 타입이 다양하게 구성되어 있으며,
특히 기존 프로젝트 대비
레이아웃 설계에서 불필요하게 낭비되는 공간을 최소화한 점이 눈에 띕니다.
전반적으로 효율적이고 합리적인 공간 설계가 돋보이는것 같습니다.
미도리파크 - 더 네스트
예상 분양가는 다음과 같습니다
1,900 ~ 2,100 usd/m2
*부가세 10% 및 2% 장기수선충당금 포함
*일반마감 (주방시설, 바닥재, 화장실 욕실 풀세팅, 에어컨, 창, 문, 발코니, 기본등 마감)
스튜디오 (34.8m2): 66,000 ~ 73,000 USD
1베드 (47.2 ~ 59m2): 89,000 ~ 123,000 USD
2베드 (63.8 ~ 74m2): 121,000 ~ 155,000 USD
2베드 + 1 (72.2 ~ 101.5m2): 137,000 ~ 213,000 USD
3베드 (75.5m2): 143,000 ~ 158,000 USD
펜트하우스 (177 ~ 207m2): 336,000 ~ 434,000 USD
분양단가는 2천불 전후로
현재 호치민에서
신규아파트 분양 조건으로 구매하실수 있는
최저가의 아파트가 될것으로 예상해봅니다.
**최근 정보 공개후 굉장히 빠른 속도로 청약이 진행되고 있다고 하니 분양은 성공적으로 마무리 될것으로 예상됩니다
중도금 일정입니다:

오는 2026년 4월 분양,
2026년 5월까지 총 20% 납입후 분양계약서 작성
이후 매월 3.5% 또는 3% 분할납입
2027년 4월 입주시 잔금 45% 납입
조건입니다.
앞으로 1년안에 공사가 완료될 예정으로
상대적으로 여유로운 중도금이라 보기는 어려울것 같습니다.
자금이 준비되어 있고
바로 입주가 필요하신분께는 오히려 장점이라 보셔도 될것 같네요 ^^
현재
빈증뉴시티 단지내
조성된 인프라
그리고 단지 주변에 위치한
주요 인프라들에 대해 자세히 알아보겠습니다:

빈증뉴시티 단지내
인프라들을
크게 교육, 상업, 의료, 행정, 업무, 녹지 및 교통 으로 나누어 보겠습니다.
1. 교육 (싱가폴, 대만국제학교, 로컬사립학교)






2. 상업 (히카리 푸드코트, 소라가든 SC 쇼핑몰, 이온마트)










3. 의료 (빈증 어반 클리닉)


4. 행정 (빈증행정센터)


5. 업무 (WTC 오피스 타워)


6. 녹지 (공원, 각종 체육시설)




7. 교통


그외
빈증뉴시티와 바로 인접한곳에 위치한
기타 인프라들은 아래와 같습니다.

골프장 (트윈 도브스, 하모니)


EIS 국제대학교


VGU 베트남-독일 대학교


VSIP II 싱가폴 공단


등이 빈증뉴시티 단지와
근접한 곳에 위치하며
수준높은 신도시 내, 외 인프라 환경을 자랑합니다.

물론 인프라의 종류 및 개수 역시 중요하지만
무엇보다도
개발사의 관리 능력
그리고 이 단지를 활성화 시키겠다는 개발사의 강력한 "의지"
야 말로
프로젝트의 성공여부를 결정하는
핵심 요소라 생각됩니다.
셔틀버스 서비스
(빈증구시가지, 신도시 단지 순환셔틀, 베트남 최초 무인 셔틀등)


축구교실 (J리그 탑클럽 가와사키)




오케스트라 공연 - the Saigon Classical Music Group and Vietnam Connection Music Festival (VNCMF)


나무 심기 행사


Meikyukai 야구 캠프




친선 축구시합 개최


재팬 페스티벌 (2023)





맥주축제 2022






등
크고 작은
각종 축제, 이벤트 및 사회봉사활동을
진행하며


단순히 아파트, 빌라를 짓고
분양하는것에 그치며
반쪽짜리 신도시로 수년째 방치되어 있는
프로젝트들이 즐비한 상황 에서
꾸준한 관리로
신도시 의미에 걸맞는 도시인프라정비,
주민들에게 선진국의 수준높은 도시 문화를 제공하기위해
개발사가 끊임없이 노력중에 있는점
다분히 귀감이 되며 칭찬받아 마땅하다 보여집니다.

물론 호치민시와 통합 논의가 진행되고 있다고는 하지만
빈증성과 호치민시를 직접 비교하는 것은 다소 무리가 있습니다.
현재 이지역의 주 수요층은
현재 빈증성 구시가지나 외곽 지역의 개인주택에 거주하시는 베트남 현지인
그리고
빈증 산업단지에 근무하는 외국인
으로
같은 예산대로는
호치민시 중심권 또는 외국인 밀집 거주 지역 투자는 현실적으로 불가능한 상황이며
그렇다고 예산에 맞춰 호치민시 외곽 지역에 투자하기에는
임대수요가 턱없이 부족한 상황에서
베트남 2위의 경제규모를 자랑하는
빈증성내
향후 제일 가는 부촌지역으로 거듭날
빈증뉴시티의
소형 아파트 프로젝트를 투자하시는것이
오히려 보다 합리적인 투자처로 보여집니다.
**실재로 현재 청약금 접수가 폭발적으로 증가하고 있다고 하니
제가 드린 말씀이 결코 과장은 아닌것 같습니다 ^^
현재
쇼핑몰 (소라가든 SC)이
성황리에 운영중에 있으며


















히카리 상가단지,
및 각 아파트 샵하우스에
대형 F&B 프렌차이즈 가게들이
꾸준히 입점되고 있으며
'베트남 호치민 부동산 정보' 카테고리의 다른 글
| THE BERKLEY 더 버클리 프로젝트 Kich-Off 행사 (3/25) (0) | 2026.03.25 |
|---|---|
| 캐피탈랜드 시카모어 프로젝트의 마지막 아파트 상품 - 오차드 콜렉션 Kich-off 행사 임박 (3/30) (0) | 2026.03.20 |
| 베트남부동산소식 - 호치민시 투티엠에 99층 최고층 금융타워 건설 계획 (0) | 2026.02.23 |
| 호치민부동산 - 2026년 상반기 신규분양 프로젝트 (0) | 2026.01.31 |
| 글로벌시티 - 마스테리 코스모 센트럴 - 1차분양개시 (2026/1) (1) | 2026.01.24 |
| 호치민시 최대 규모 종합 스포츠 단지 - 락찌엑 스포츠 컴플렉스 공식 착공 (2026.1.15) (1) | 2026.01.19 |
| 글로벌시티 - 파크플레이스 2차 분양 및 모델하우스 오픈 소식 (11/22) (0) | 2025.11.25 |
| 글로벌시티와 타오디엔을 잇는 Lien Phuong 도로 개통소식 (2025/11) (0) | 2025.11.24 |













